2067 Laukahi Street Honolulu, HI 96821

Listing
Overview

Price: $2,149,000
Area: WAIALAE IKI
Status: Sold (Limited photos per MLS privacy policy)

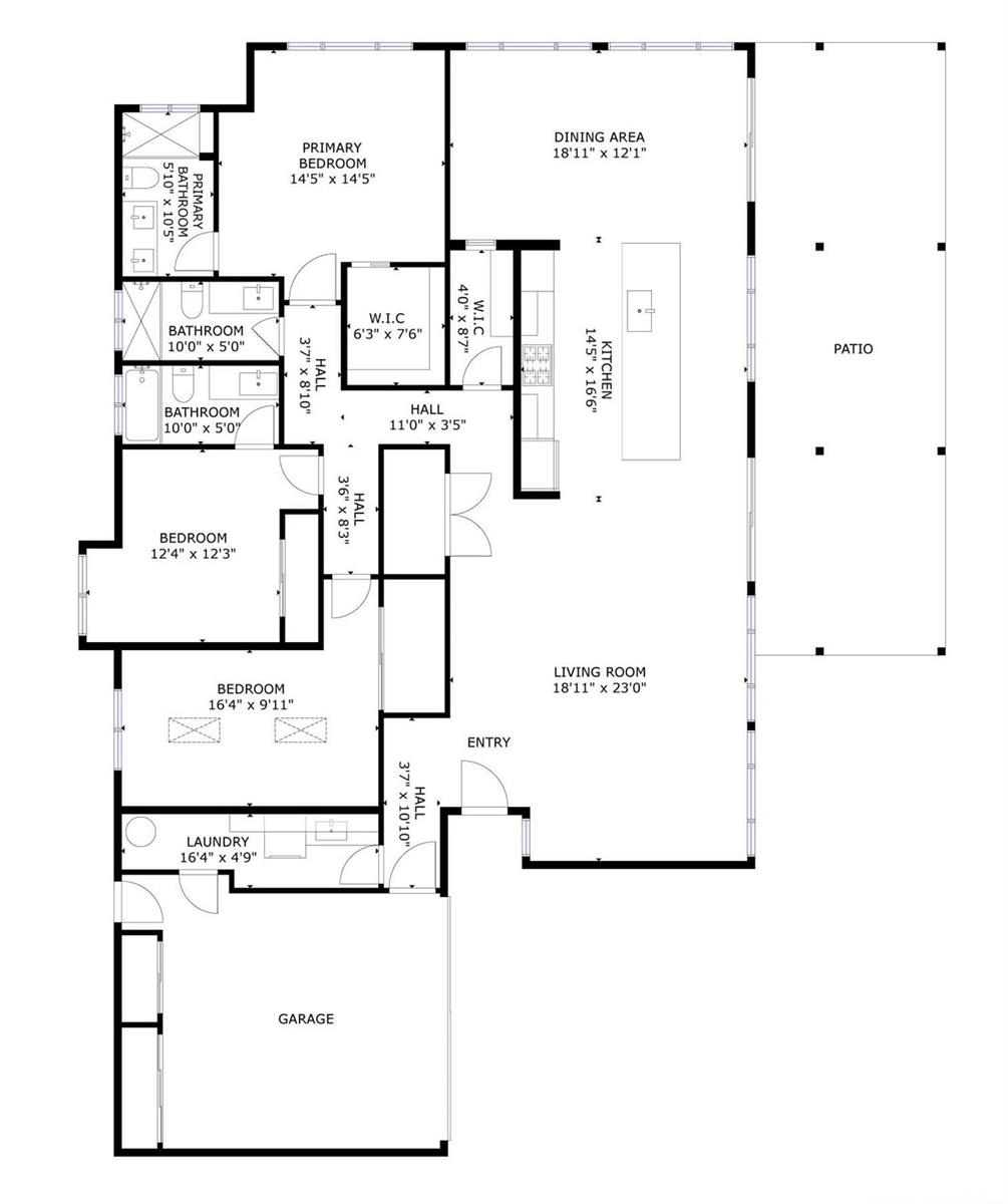
Nestled within the private/gated community of Waialae Iki V, this beautifully fully renovated single-level residence blends contemporary elegance with island living. Featuring three spacious bedrooms and three full bathrooms, this home offers a seamless blend of luxury, functionality, and comfort. Step inside to discover soaring ceilings and rich wood flooring that flows effortlessly throughout the open-concept living spaces. All bathrooms are finished with sleek porcelain tiles, Toto toilets, and frameless glass-enclosed showers, creating a spa-like experience in every suite. At the heart of the home is the designer kitchen outfitted with high-end, natural wood-faced cabinetry, a striking waterfall-style island, and brand-new luxury appliances. Enjoy an abundance of natural light thanks to strategically placed skylights and quality aluminum roof shingles that add both style and durability. The home is surrounded by tropical landscaping with an open lawn, covered lanai, and an expansive open deck—perfect for indoor-outdoor living and entertaining. Listing by: Penthouse Realty Corporation (808) 387-8000

array(45) {
  ["MLSNumber"]=>
  array(1) {
    [0]=>
    string(9) "202523358"
  }
  ["StreetNumber"]=>
  array(1) {
    [0]=>
    string(4) "2067"
  }
  ["PropertyType"]=>
  array(1) {
    [0]=>
    string(13) "Single Family"
  }
  ["StreetName"]=>
  array(1) {
    [0]=>
    string(7) "Laukahi"
  }
  ["StreetSuffix"]=>
  array(1) {
    [0]=>
    string(6) "Street"
  }
  ["UnitNumber"]=>
  array(1) {
    [0]=>
    string(0) ""
  }
  ["City"]=>
  array(1) {
    [0]=>
    string(8) "Honolulu"
  }
  ["StateOrProvince"]=>
  array(1) {
    [0]=>
    string(2) "HI"
  }
  ["PostalCode"]=>
  array(1) {
    [0]=>
    string(5) "96821"
  }
  ["VirtualTourURLUnbranded"]=>
  array(1) {
    [0]=>
    string(0) ""
  }
  ["ListPrice"]=>
  array(1) {
    [0]=>
    string(10) "2149000.00"
  }
  ["Neighbourhood"]=>
  array(1) {
    [0]=>
    string(11) "WAIALAE IKI"
  }
  ["Status"]=>
  array(1) {
    [0]=>
    string(4) "Sold"
  }
  ["PublicRemarks"]=>
  array(1) {
    [0]=>
    string(1067) "Nestled within the private/gated community of Waialae Iki V, this beautifully fully renovated single-level residence blends contemporary elegance with island living. Featuring three spacious bedrooms and three full bathrooms, this home offers a seamless blend of luxury, functionality, and comfort. Step inside to discover soaring ceilings and rich wood flooring that flows effortlessly throughout the open-concept living spaces. All bathrooms are finished with sleek porcelain tiles, Toto toilets, and frameless glass-enclosed showers, creating a spa-like experience in every suite.  At the heart of the home is the designer kitchen outfitted with high-end, natural wood-faced cabinetry, a striking waterfall-style island, and brand-new luxury appliances.  Enjoy an abundance of natural light thanks to strategically placed skylights and quality aluminum roof shingles that add both style and durability. The home is surrounded by tropical landscaping with an open lawn, covered lanai, and an expansive open deck—perfect for indoor-outdoor living and entertaining."
  }
  ["ListOfficeName"]=>
  array(1) {
    [0]=>
    string(28) "Penthouse Realty Corporation"
  }
  ["BedsTotal"]=>
  array(1) {
    [0]=>
    string(1) "3"
  }
  ["BathsFull"]=>
  array(1) {
    [0]=>
    string(1) "3"
  }
  ["BathsHalf"]=>
  array(1) {
    [0]=>
    string(1) "0"
  }
  ["LotSizeArea"]=>
  array(1) {
    [0]=>
    string(7) "7888.00"
  }
  ["SqftTotal"]=>
  array(1) {
    [0]=>
    string(4) "1958"
  }
  ["YearBuilt"]=>
  array(1) {
    [0]=>
    string(4) "1984"
  }
  ["BuildingName"]=>
  array(1) {
    [0]=>
    string(0) ""
  }
  ["PropertyCondition"]=>
  array(1) {
    [0]=>
    string(9) "Excellent"
  }
  ["ParkingTotal"]=>
  array(1) {
    [0]=>
    string(1) "4"
  }
  ["StoriesType"]=>
  array(1) {
    [0]=>
    string(3) "One"
  }
  ["View"]=>
  array(1) {
    [0]=>
    string(8) "Mountain"
  }
  ["MaintenanceExpense"]=>
  array(1) {
    [0]=>
    string(0) ""
  }
  ["LandTenure"]=>
  array(1) {
    [0]=>
    string(15) "FS - Fee Simple"
  }
  ["ElementarySchool"]=>
  array(1) {
    [0]=>
    string(10) "Aina Haina"
  }
  ["MiddleOrJuniorSchool"]=>
  array(1) {
    [0]=>
    string(10) "Niu Valley"
  }
  ["HighSchool"]=>
  array(1) {
    [0]=>
    string(6) "Kalani"
  }
  ["ListOfficeMLSID"]=>
  array(1) {
    [0]=>
    string(4) "PERC"
  }
  ["ListAgentEmail"]=>
  array(1) {
    [0]=>
    string(19) "karenw808@gmail.com"
  }
  ["ListAgentDirectWorkPhone"]=>
  array(1) {
    [0]=>
    string(14) "(808) 387-8000"
  }
  ["ListAgentFullName"]=>
  array(1) {
    [0]=>
    string(11) "Karen KY Wu"
  }
  ["CloseDate"]=>
  array(1) {
    [0]=>
    string(10) "2026-01-08"
  }
  ["Matrix_Unique_ID"]=>
  array(1) {
    [0]=>
    string(8) "19041139"
  }
  ["MatrixModifiedDT"]=>
  array(1) {
    [0]=>
    string(23) "2026-01-09T10:00:52.010"
  }
  ["ListingContractDate"]=>
  array(1) {
    [0]=>
    string(10) "2025-10-23"
  }
  ["MLSAreaMajor"]=>
  array(1) {
    [0]=>
    string(9) "DiamondHd"
  }
  ["PropertyFrontage"]=>
  array(1) {
    [0]=>
    string(0) ""
  }
  ["ExemptListingEntryTimestamp"]=>
  array(1) {
    [0]=>
    string(0) ""
  }
  ["MatrixModifiedTime"]=>
  array(1) {
    [0]=>
    string(12) "10:00:52.010"
  }
  ["_thumbnail_id"]=>
  array(1) {
    [0]=>
    string(8) "27197629"
  }
  ["listing_image"]=>
  array(25) {
    [0]=>
    string(8) "27197629"
    [1]=>
    string(8) "27197630"
    [2]=>
    string(8) "27197631"
    [3]=>
    string(8) "27197632"
    [4]=>
    string(8) "27197633"
    [5]=>
    string(8) "27197634"
    [6]=>
    string(8) "27197635"
    [7]=>
    string(8) "27197636"
    [8]=>
    string(8) "27197637"
    [9]=>
    string(8) "27197638"
    [10]=>
    string(8) "27197639"
    [11]=>
    string(8) "27197640"
    [12]=>
    string(8) "27197641"
    [13]=>
    string(8) "27197642"
    [14]=>
    string(8) "27197643"
    [15]=>
    string(8) "27197644"
    [16]=>
    string(8) "27197645"
    [17]=>
    string(8) "27197646"
    [18]=>
    string(8) "27197647"
    [19]=>
    string(8) "27197648"
    [20]=>
    string(8) "27197649"
    [21]=>
    string(8) "27197650"
    [22]=>
    string(8) "27197651"
    [23]=>
    string(8) "27197652"
    [24]=>
    string(8) "27197653"
  }
}
Array
(
    [MLSNumber] => Array
        (
            [0] => 202523358
        )

    [StreetNumber] => Array
        (
            [0] => 2067
        )

    [PropertyType] => Array
        (
            [0] => Single Family
        )

    [StreetName] => Array
        (
            [0] => Laukahi
        )

    [StreetSuffix] => Array
        (
            [0] => Street
        )

    [UnitNumber] => Array
        (
            [0] => 
        )

    [City] => Array
        (
            [0] => Honolulu
        )

    [StateOrProvince] => Array
        (
            [0] => HI
        )

    [PostalCode] => Array
        (
            [0] => 96821
        )

    [VirtualTourURLUnbranded] => Array
        (
            [0] => 
        )

    [ListPrice] => Array
        (
            [0] => 2149000.00
        )

    [Neighbourhood] => Array
        (
            [0] => WAIALAE IKI
        )

    [Status] => Array
        (
            [0] => Sold
        )

    [PublicRemarks] => Array
        (
            [0] => Nestled within the private/gated community of Waialae Iki V, this beautifully fully renovated single-level residence blends contemporary elegance with island living. Featuring three spacious bedrooms and three full bathrooms, this home offers a seamless blend of luxury, functionality, and comfort. Step inside to discover soaring ceilings and rich wood flooring that flows effortlessly throughout the open-concept living spaces. All bathrooms are finished with sleek porcelain tiles, Toto toilets, and frameless glass-enclosed showers, creating a spa-like experience in every suite.  At the heart of the home is the designer kitchen outfitted with high-end, natural wood-faced cabinetry, a striking waterfall-style island, and brand-new luxury appliances.  Enjoy an abundance of natural light thanks to strategically placed skylights and quality aluminum roof shingles that add both style and durability. The home is surrounded by tropical landscaping with an open lawn, covered lanai, and an expansive open deck—perfect for indoor-outdoor living and entertaining.
        )

    [ListOfficeName] => Array
        (
            [0] => Penthouse Realty Corporation
        )

    [BedsTotal] => Array
        (
            [0] => 3
        )

    [BathsFull] => Array
        (
            [0] => 3
        )

    [BathsHalf] => Array
        (
            [0] => 0
        )

    [LotSizeArea] => Array
        (
            [0] => 7888.00
        )

    [SqftTotal] => Array
        (
            [0] => 1958
        )

    [YearBuilt] => Array
        (
            [0] => 1984
        )

    [BuildingName] => Array
        (
            [0] => 
        )

    [PropertyCondition] => Array
        (
            [0] => Excellent
        )

    [ParkingTotal] => Array
        (
            [0] => 4
        )

    [StoriesType] => Array
        (
            [0] => One
        )

    [View] => Array
        (
            [0] => Mountain
        )

    [MaintenanceExpense] => Array
        (
            [0] => 
        )

    [LandTenure] => Array
        (
            [0] => FS - Fee Simple
        )

    [ElementarySchool] => Array
        (
            [0] => Aina Haina
        )

    [MiddleOrJuniorSchool] => Array
        (
            [0] => Niu Valley
        )

    [HighSchool] => Array
        (
            [0] => Kalani
        )

    [ListOfficeMLSID] => Array
        (
            [0] => PERC
        )

    [ListAgentEmail] => Array
        (
            [0] => karenw808@gmail.com
        )

    [ListAgentDirectWorkPhone] => Array
        (
            [0] => (808) 387-8000
        )

    [ListAgentFullName] => Array
        (
            [0] => Karen KY Wu
        )

    [CloseDate] => Array
        (
            [0] => 2026-01-08
        )

    [Matrix_Unique_ID] => Array
        (
            [0] => 19041139
        )

    [MatrixModifiedDT] => Array
        (
            [0] => 2026-01-09T10:00:52.010
        )

    [ListingContractDate] => Array
        (
            [0] => 2025-10-23
        )

    [MLSAreaMajor] => Array
        (
            [0] => DiamondHd
        )

    [PropertyFrontage] => Array
        (
            [0] => 
        )

    [ExemptListingEntryTimestamp] => Array
        (
            [0] => 
        )

    [MatrixModifiedTime] => Array
        (
            [0] => 10:00:52.010
        )

    [_thumbnail_id] => Array
        (
            [0] => 27197629
        )

    [listing_image] => Array
        (
            [0] => 27197629
            [1] => 27197630
            [2] => 27197631
            [3] => 27197632
            [4] => 27197633
            [5] => 27197634
            [6] => 27197635
            [7] => 27197636
            [8] => 27197637
            [9] => 27197638
            [10] => 27197639
            [11] => 27197640
            [12] => 27197641
            [13] => 27197642
            [14] => 27197643
            [15] => 27197644
            [16] => 27197645
            [17] => 27197646
            [18] => 27197647
            [19] => 27197648
            [20] => 27197649
            [21] => 27197650
            [22] => 27197651
            [23] => 27197652
            [24] => 27197653
        )

)

  • BedsTotal: 3
  • Full Baths: 3
  • Land Area (sf): 7,888 sf
  • Living (sf): 1,958
  • Year Built: 1984

  • Property Condition: Excellent
  • Number of Parking Spaces: 4
  • View: Mountain
  • Listing Office: Penthouse Realty Corporation

  • Land Tenure: FS - Fee Simple

  • Elementary School: Aina Haina
  • Middle School: Niu Valley
  • High School: Kalani

CONTACT US

Marcus Realty

#RB-7120
info@marcushawaii.com
(808)839-7446

Based on information from the Multiple Listing Service of HiCentral MLS, Ltd. listings last updated on January 9, 2026 - 10:00 AM Information is deemed reliable but not guaranteed. Copyright: 2026 by HiCentral MLS, Ltd.
Some of the active listings appearing on this site may be listed by other REALTORS®. If you are interested in those active listings, our company may represent you as the buyer's agent. If the active listing you are interested in is our company's active listing, you may speak to one of our agents regarding your options for representation.

© Marcus Realty. All Rights Reserved.